
KS0521雙保持電磁鐵具有環保、節能、安全等優越的性能被廣泛用于汽車、自動化設備、安防設備等產品上。
東莞磁心電磁科技研發、生產的保持式電磁鐵(Keep solenoid)使用了永久磁鐵。它的工作原理與所有直線運動的電磁鐵是相似的。當線圈被激勵后,滑桿向鐵芯移動,并最終停止在終點位置。而當電源切斷之后,滑桿仍然保持在原來的地方,如果要使滑桿返回,必須施加反向電壓(或電流)。這類電磁鐵都可以做成拉入及推出兩種動作形式。
保持式電磁鐵分單向自保持與雙向自保持兩種。單向自保持只將鐵芯保持(自鎖)在行程終端的一個位置。而雙向自保持電磁鐵采用雙線圈結構,能將鐵芯保持(自鎖)在形成始與終的兩個不同的位置,且兩個位置具有同等的輸出力矩(具有雙穩態特點)。具體產品請上我公司官網(www.gywanjia.com)或者來電查詢。本公司為專業研發設計電磁鐵的公司,由于電磁鐵為非標元器件,以上僅為典型應用,如您的要求與上述不一樣,我們可按您的要求,為您量身訂做合您要求的產品。歡迎大家與我們共同探討研究開發新產品。
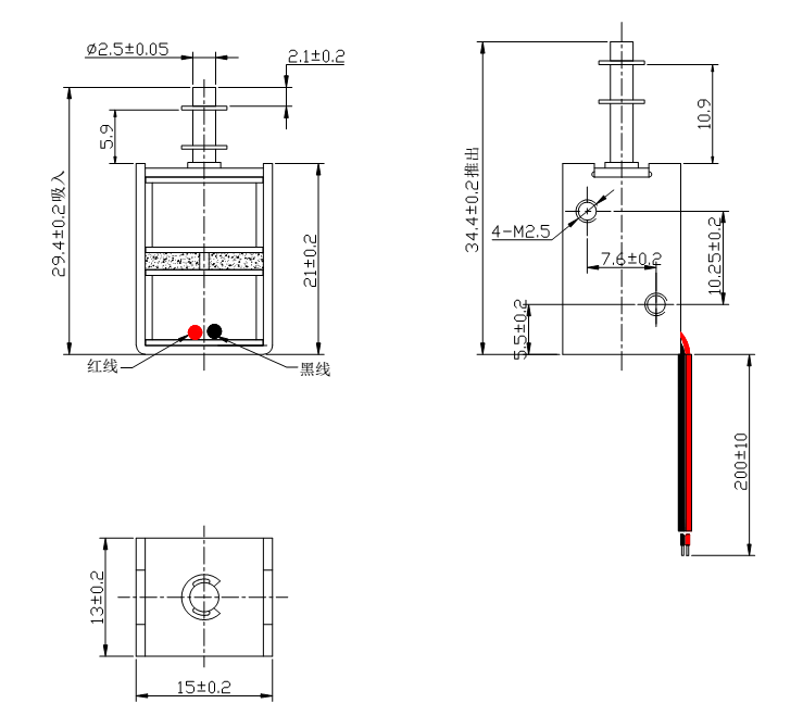
KS0521保持式電磁鐵尺寸圖紙:

KS0521保持式電磁鐵的電極參數:
1,電壓:一般采用DC12V、DC24V
2,電流:一般選用0.6-1A
3,功率大小:建議在20-30W 產品性能能達到最優化。
4,保持力:一般在100克左右,推拉力在100克左右。
其余保持式電磁鐵參考圖片:





磁心科技研發生產各種規格、力度的保持式電磁鐵,如果上述產品和您要求的不一致,歡迎您來圖來樣,我們會第一時間派專業和您服務!